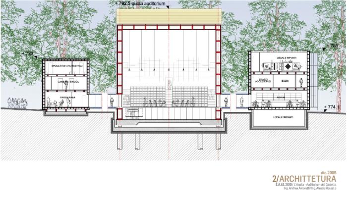
NUOVO AUDITORIUM DEL CASTELLO DE L'AQUILA
Progetto Renzo Piano Building Workshop, Arch. Alessandro Traldi
Progetto delle strutture e degli impianti Favero & Milan Ingegneria SpA

-----------------------------------------------------
Seguono alcune slides tratte dalla relazione tecnica tenuta al SAIE 2010
da Ing. Andrea Amoretti e Ing. Alessio Rossato - Favero & Milan Ingegneria SpA

Per gentile concessione Favero & Milan Ingegneria SpA



















































Per inviare un messaggio: hsh@iperv.it